8 años después... la verdad sobre cómo los Zetas convirtieron al Penal de Piedras Negras en su maquiladora

8 años después... la verdad sobre cómo los Zetas convirtieron al Penal de Piedras Negras en su maquiladora

+ Seguir en Seguir en Google

La investigación "El Yugo Zeta" realizada por los académicos Sergio Aguayo y Jacobo Dayán, revela cómo el "Z42" utilizaba el penal como guarida para esconderse, para almacenar secuestrados, para incinerar, para hacer fiestas y hasta para reclutar gente, como aquella famosa aparente fuga de 129 reos. Esta es la verdad sobre el autogobierno Zeta del que sabían autoridades estatales y federales, mil 459 llamadas de auxilio al 089 que se registraron el día de la Masacre de Allende, lo confirman.

Nacional
/ 21 noviembre 2017
COMPARTIR

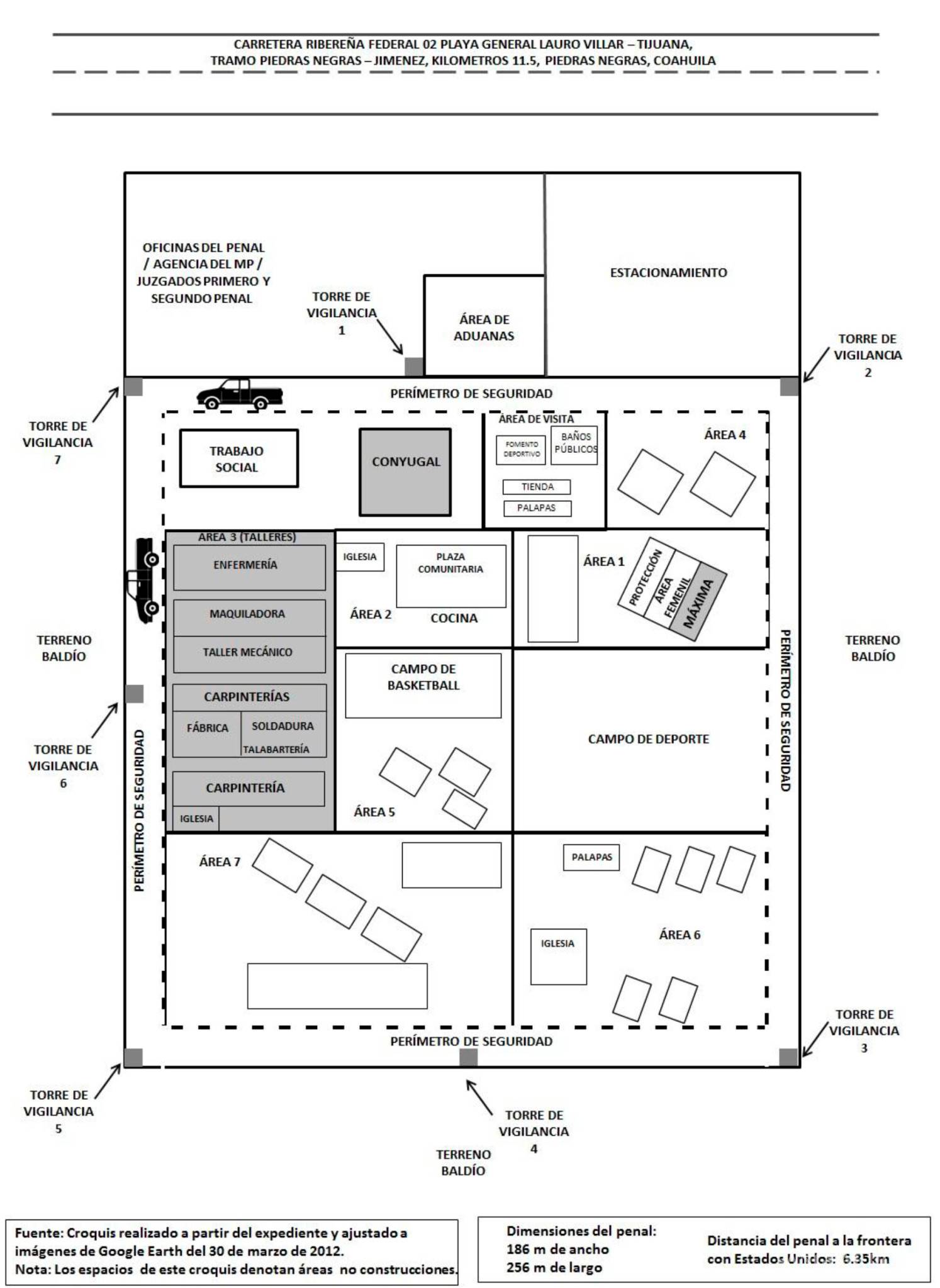
El Penal de Piedras Negras fue para los Zetas, además de un refugio, una fuente de ingresos y el centro de operaciones donde adecuaban vehículos para transportar droga a los Estados Unidos e incineraban los cadáveres de sus víctimas, según revela la investigación “El Yugo Zeta”, realizada por investigadores del Colegio de México y la Universidad Iberoamericana.

Los resultados del estudio, llevado a cabo por Sergio Aguayo y Jacobo Dayán, se basan en el expediente APP 005/2014-BIS, que consta de mil 535 folios y que fue facilitado por la Fiscalía General del Estado de Coahuila en la primera etapa de su investigación del Penal. Contiene declaraciones de 11 miembros de Los Zetas, 49 internos, 21 custodios y 18 empleados del centro penitenciario.

La investigación revela que los Zetas operaban por completo el Penal de Piedras Negras y detalla que contaban con un “jefe de cárcel”, quien se encargaba de “manejar la plaza adentro del penal para que todo estuviera tranquilo y que funcionara bien la venta de drogas entre los internos”, explicó el mismo criminal.

Además, el grupo criminal utilizaba los talleres del centro penitenciario. El de hojalatería y pintura lo usaban para arreglar vehículos y adaptarlos con compartimientos secretos para esconder droga y transportarla a los Estados Unidos para su venta y distribución, mientras que en el de costura fabricaban uniformes militares falsos y en el de soldadura hacían estrellas o picos para ponchar llantas.

“Fueron un chingo y de todas marcas y modelo”, señaló un interno que trabajó en hojalatería y pintura, quien dijo haber arreglado “alrededor de 150 o más (vehículos), la mayoría de origen americano”.

De acuerdo con testimonios del “jefe de cárcel”, que llevó a cabo esa labor entre el 2009 y el 2012, el Penal de Piedras Negras también era un centro de consumo. “La droga me la entregaba un contador que trabajaba para los Zetas… los celadores lo dejaban entrar por la puerta principal del penal y me entregaba una mochila [que] contenía sobres de mariguana y cocaína en bolsitas y piedra de la misma cocaína”.

Los delincuentes además usaban el Penal para resguardar a personas que habían sido secuestradas fuera del centro penitenciario para negociar sus rescates.

En el 2010, asegura el informe, altos mandos de la organización delictiva ordenaron al jefe de cárcel incrementar los ingresos en el interior del Penal. Aunque no estaba de acuerdo en perjudicar a los internos que no estuvieran ligados a los Zetas, terminó cumpliendo la orden y empezó a los reos la renta de sus celdas.

“En ocasiones entraban los jefes grandes y hacían fiestas [con música y mujeres]. La fiesta podía durar todo el día y toda la noche y en algunas ocasiones llevaban vacas y las mataban adentro del penal para darle de comer a toda la raza”

“Terminó haciendo lo que le pedían y ordenó que todos los internos debían dar una cuota semanal de 25 pesos que luego aumentó a 50 pesos. Es decir, rentaban las celdas construidas y mantenidas por el Estado”, afirma el documento.

Además, los criminales empezaron a cobrar mil pesos quincenales a los internos “que se veía que tenían dinero”, 50 pesos por noche en el área conyugal, una cuota por los servicios de luz y agua con intereses para los morosos. También manejaban la venta de tarjetas telefónicas, chicharrones, refrescos, dulces y cigarros.

“Cuando el hospital recibía medicinas las confiscaban para luego venderlas a los internos. También obtenían ingresos de los talleres”, asegura el informe.

Una parte de los ingresos que obtenía el grupo delictivo, eran destinados a pagar al personal directivo y de seguridad del Penal de Piedras Negras. Erogaban alrededor de 1.5 millones de pesos anuales, es decir, 125 mil pesos mensuales.

El análisis señala que hay indicios de que, por lo menos uno de los dos hermanos que controlaban la región, Omar Treviño Morales, el Z-42, se escondía en el Penal de Piedras Negras cuando la Marina realizaba operativos para capturarlo, pues era el lugar más seguro para criminales perseguidos por federales que estaban fuera de su nómina.

“En ocasiones entraban los jefes grandes y hacían fiestas [con música y mujeres]. La fiesta podía durar todo el día y toda la noche y en algunas ocasiones llevaban vacas y las mataban adentro del penal para darle de comer a toda la raza”, señala una declaración hecha ante las autoridades.

 

(Las Autoridades) nunca cuestionaron nada, siempre se mantuvieron al margen y como en las demás ocasiones no se hizo nada por cambiar lo que aquí pasaba”

Al jefe de cárcel también le encomendaban la incineración de los cuerpos de personas asesinadas (niños y ancianos incluidos) por el grupo delictivo en el exterior del centro penitenciario y “quemaban” los cuerpos en el interior del Penal, justo frente a una torre de vigilancia. Un terreno baldío cercano al “Laguito Mexicano”, un basurero municipal y un campo de futbol cercano al Penal, eran otros centros de exterminio utilizados por los Zetas.

Por otro lado, el Penal de Piedras también era para los Zetas el lugar ideal para reclutar sicarios, por lo que a veces sacaban hasta a 100 reos para trabajar con ellos. Además simulaban fugas de reos, como la que ocurrió en septiembre del 2012, donde supuestamente se fugaron 129 internos, casi una quinta parte de la población total del centro penitenciario.

Según los testimonios recogidos por la Fiscalía General del Estado, esa fuga fue planeada, pues el jefe de cárcel, que en ese entonces ya estaba recluido en Saltillo “necesitaba gente para trabajar”. De los 129 fugados, 80 han sido recapturados y están internados en CEFERESOS (cárceles federales), 20 fueron abatidos y 29 siguen prófugos.

El documento concluye que entre el 2010 y el 2011 el control de los Zetas en el norte de Coahuila era total y las autoridades estaban enteradas.

"Unas dos o tres veces por año llegaron a venir a este CERESO autoridades de Saltillo. Conocieron la problemática que había, pues las personas que estuvieron como directores en el tiempo que yo estuve se los hacían ver a ellos, las visitas eran únicamente del estacionamiento a la oficina del director y de la oficina al estacionamiento, raras veces llegaron a entrar al CERESO pero era visita muy rápido, no se tardaba nada, nunca cuestionaron nada, siempre se mantuvieron al margen y como en las demás ocasiones no se hizo nada por cambiar lo que aquí pasaba”, declaró un ex custodio.

 

RECIBIERON MÁS DE MIL 400 LLAMADAS DE EMERGENCIA EL FIN DE SEMANA DE LA VENGANZA

Entre el 18 y el 22 de marzo del 2011, días en que ocurrieron un número indeterminado de desapariciones y asesinatos en los municipios de Allende y Piedras Negras principalmente, el C4 reportó a la Fiscalía General del Estado haber recibido solo una llamada con un reporte en el que una mujer aseguraba que Allende era un pueblo sin control.

Sin embargo, un Visitador de la Comisión Nacional de los Derechos Humanos pidió al C4 las llamadas que se hicieron en Allende y Piedras Negras en esas fechas y se descubrió que en realidad de realizaron mil 451 llamadas, de las cuales 26 se originaron en Allende y mil 425 en Piedras Negras.

“Algo muy grave debió haber ocurrido en Piedras Negras. De estas llamadas, 100 son para reportar 42 distintos incendios en Piedras Negras y 9 en Allende sobre 4 incendios. Demasiados incendios para tan pocos días. Sobre todo porque en algunos sitios se reporta más de un incendio el mismo día o en días consecutivos, incluso después de haberse extinguido el fuego”, señala el informe.

Pese a que el Gobierno del Estado señala que el número de víctimas fue de 28, los investigadores aseguran que existe la posibilidad de que la cifra sea mayor a 100 e incluso alcance los 300, como se manejó en un principio.

$!8 años después... la verdad sobre cómo los Zetas convirtieron al Penal de Piedras Negras en su maquiladora
“La displicencia con la cual transmitieron información tan delicada es típica de la informalidad que caracteriza las relaciones sobre seguridad entre México y Estados Unidos”

LA RESPONSABILIDAD DE LOS ESTADOS UNIDOS

En el informe, Dayán y Aguayo replican la versión de que las muertes y desapariciones en Allende y Piedras Negras se dieron por una venganza de los Zetas contra un ex colaborador del grupo criminal que otorgó a la DEA los números de teléfono rastreables de Miguel Ángel y Omar Treviño Morales, cabecillas de la organización delictiva, para su localización, pero éstos se enteraron.

“La displicencia con la cual transmitieron información tan delicada es típica de la informalidad que caracteriza las relaciones sobre seguridad entre México y Estados Unidos”, afirma el documento.

 

$!8 años después... la verdad sobre cómo los Zetas convirtieron al Penal de Piedras Negras en su maquiladora

EL ESTADO MEXICANO FRENTE AL ENCLAVE CRIMINAL

“Hay evidencia de que el gobierno de Coahuila y la federación sí supieron que algo grave había pasado en el norte de Coahuila”.

“En los tres niveles de gobierno supieron que la cárcel estaba controlada por el crimen organizado. La CNDH lo había informado públicamente y algunos funcionarios fueron testigos presenciales de un secreto a voces. Al ignorarlo permitieron que, según el expediente revisado, en la prisión de Piedras Negras se cometieran al menos 27 delitos distintos tipificados en el Código Penal del Estado de Coahuila y diez en códigos federales”, señala el estudio.

Los testimonios recabados por las autoridades coinciden en que los Zetas tenían controlados a los policías municipales del norte de Coahuila. Además, el informe concluye que los gobiernos municipales no contaron con el respaldo del gobierno estatal y federal.

“La evidencia abunda. En la investigación sobre Allende encontramos que desde 2009, la dirección de la policía municipal ya estaba involucrada con la delincuencia organizada y que en el 2010 el sometimiento era total. En Piedras Negras y otros municipios de la región sucedía algo similar aunque todavía falta establecerlo con mayor precisión”.

EL GOBIERNO DEL ESTADO Y LA CÁRCEL

El análisis de los investigadores concluye que los funcionarios encargados de las cárceles de Coahuila estaban enterados y lejos de actuar contra ello, colaboraban con las operaciones de la organización criminal de los Zetas.

Según un agente penitenciario, los responsables de turno y el director “nos dijeron a mí y a mis otros compañeros que no nos metiéramos en problemas, que a esos señores no se les molestaba. En pocas palabras, que los criminales tenían el control del CERESO”.

En el Penal de Piedras Negras se hacían los compartimientos secretos para introducir narcóticos para meterlos de contrabando en los Estados Unidos y se tienen indicios de que el centro penitenciario era un depósito desde donde se repartía mercancía en Piedras Negras. Los responsables de turno incluso entregaban las cajas con droga para su distribución.

Además, el jefe de cárcel declaró que en ocasiones, cuando requería salir del Penal para ocuparse de sus asuntos, se llevaba con él a personal del centro penitenciario para su protección, a manera de escoltas.

Por otro lado, el informe concluye con base en los reportes que recibió el C4 el 22 de marzo, que las autoridades estaban enteradas de lo que ocurría por lo menos en el municipio de Allende.

TEMAS
Localizaciones
Personajes
Organizaciones
Selección de los editores